
South Wing 1st Floor
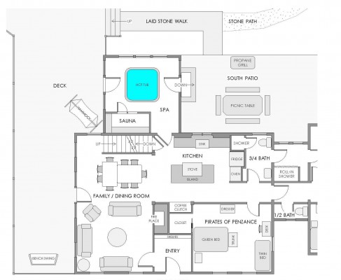
The South Wing is the original house built in 1994. It has three bedrooms, two bathrooms, and a sleeping loft. Also in the South Wing is the family room with working fireplace, a casual dining area that seats up to 12, the kitchen, and the spa.

South Wing 2nd & 3rd Floor
Bedroom #1: “Pirates of Penzance” – 1st floor, one queen, one twin
Bedroom #2: “Gondoliers” – 2nd floor, one queen
Bedroom #3: “Yeomen of the Guard” – 2nd floor, one twin
Sleeping Loft: “The Merry Widow” – 3rd floor, four twins (two can be reconfigured to make one king, shoji screens available for added privacy)
Home Page The House Event/Attractions Pricing Availability Contact